Marina di Cecina via Giulietti- Ampio Appartamento a Due Passi Dal Mare
RIF. CM134

Marina di Cecina

Caratteristiche Servizi Planimetria Contatti

Cecina Mare - Via Giulietti -  a  soli 200 mt. c.a. dalla bellissima pineta e dal mare.

 

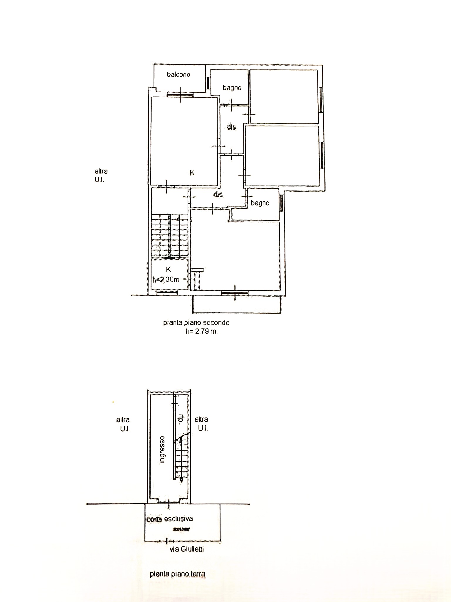
Proponiamo ampio appartamento angolare con  ingresso indipendente tramite comode e ampie scale interne dove è presente anche un ripostiglio, piccolo spazio esterno.

L’appartamento si sviluppa al secondo e ultimo piano ed e' stato suddiviso in due appartamenti  indipendenti, ciascuno  composto da: ampio soggiorno, camera matrimoniale,  bagno finestrato e terrazzo. In una delle due unità il cucinotto è separato dalla zona living, nell’altra la cucina è a vista nel soggiorno.


L’ intero appartamento è dotato di climatizzatore caldo/freddo.


Luminoso e ben mantenuto non necessita di interventi di ristrutturazione.


No Condominio.

 

Ottima soluzione come Casa Vacanze o per Investimento, in quanto predisposto per essere affittato come due unita' abitative separate.


Caratteristiche della Casa

Camere da letto
2
Metri Quadri
120 c.a.
Numero Vani
5
Piano
2
Numero Bagni
2
Distanza dal mare
200 m c.a.
Classe Energetica
G
Ipe
222,08
Terrazza
2

Servizi

Climatizzatore
Riscaldamento

Planimetria

Ricerca per RIF.

Trova la tua casa

Sei interessato a questo immobile?

IMMOBILIARE CASA&MARE
Via S. Pellico, 1
57022 Marina di Castagneto
Carducci (LI), Toscana - Italy

Via Circonvallazione, 29
Cecina (LI), Toscana - Italy

Tel. 0565.745061
Whatsapp: 0565 745061

E-mail: casaemare@casaemare.com

Per avere informazioni via e-mail può utilizzare il modulo sottostante. Sarà nostro piacere risponderle al più presto. Grazie.