Appartamento di 5 Vani - al Piano Terra in Bifamiliare con Ampio Giardino
RIF. M102

Marina di Castagneto Carducci

Caratteristiche Servizi Planimetria Contatti

Marina di Castagneto Carducci – Viale delle Palme
Ampio quadrilocale con giardino privato – nessuna spesa condominiale

 

In posizione strategica, comoda ai principali servizi e a meno di 1 km dal mare, proponiamo in vendita un luminoso appartamento angolare situato al piano terra con ingresso indipendente e circondato da un ampio giardino privato.

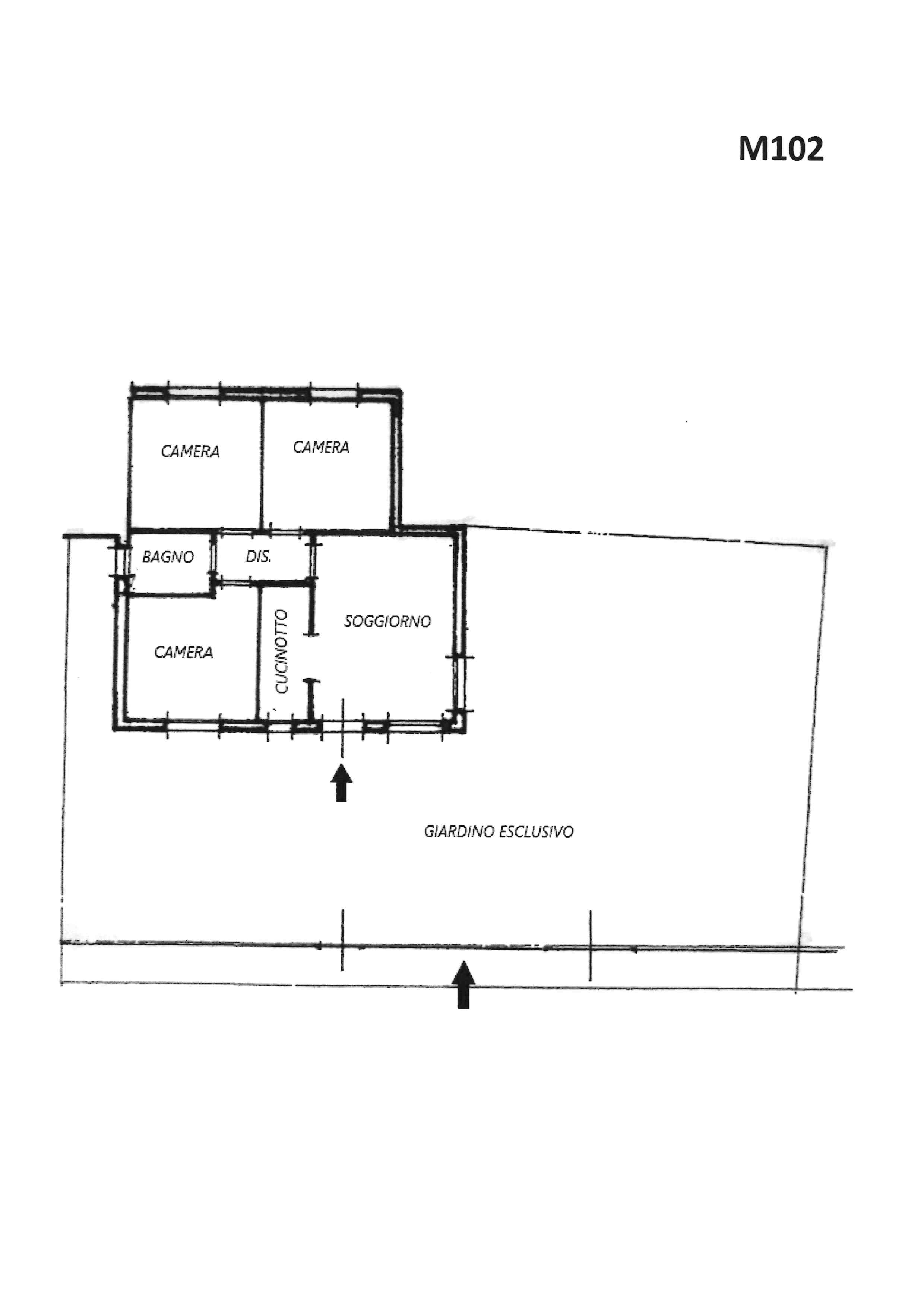
L’immobile si sviluppa su un unico livello e offre spazi ben distribuiti, con un accogliente soggiorno, un cucinotto funzionale, un disimpegno che conduce alla zona notte, un bagno finestrato con doccia e tre camere da letto matrimoniali.

Il giardino privato di circa 80 mq rappresenta un vero valore aggiunto: è attrezzato con doccia esterna, area barbecue e una comoda casetta in legno per il ricovero di attrezzi e oggetti vari, rendendolo perfetto per momenti di relax all’aperto.

NO CONDOMINIO

Caratteristiche della Casa

Camere da letto
3
Metri Quadri
80 c.a.
Numero Vani
5
Piano
Terra
Numero Bagni
1
Posti Auto
In giardino
Distanza dal mare
700 m c.a.
Classe Energetica
G
Ipe
222,06
Giardino mq. c.a.
80

Servizi

Barbecue
Giardino
Posto auto

Planimetria

Ricerca per RIF.

Trova la tua casa

Sei interessato a questo immobile?

IMMOBILIARE CASA&MARE
Via S. Pellico, 1
57022 Marina di Castagneto
Carducci (LI), Toscana - Italy

Via Circonvallazione, 29
Cecina (LI), Toscana - Italy

Tel. 0565.745061
Whatsapp: 0565 745061

E-mail: casaemare@casaemare.com

Per avere informazioni via e-mail può utilizzare il modulo sottostante. Sarà nostro piacere risponderle al più presto. Grazie.