Trilocale Angolare Ristrutturato con Ampio Giardino e Posto Auto Privato
RIF. M105

Caratteristiche Servizi Planimetria Contatti

Marina di Castagneto Carducci - In zona tranquilla e residenziale,  a 800 mt. circa dal mare, con vista sulla pineta e di fronte ad un ampio parco a verde, vendiamo trilocale angolare a piano terra, con ingresso indipendente da ampio giardino privato, con ottima esposizione, ben luminosa, attrezzato con doccia esterna e barbecue.


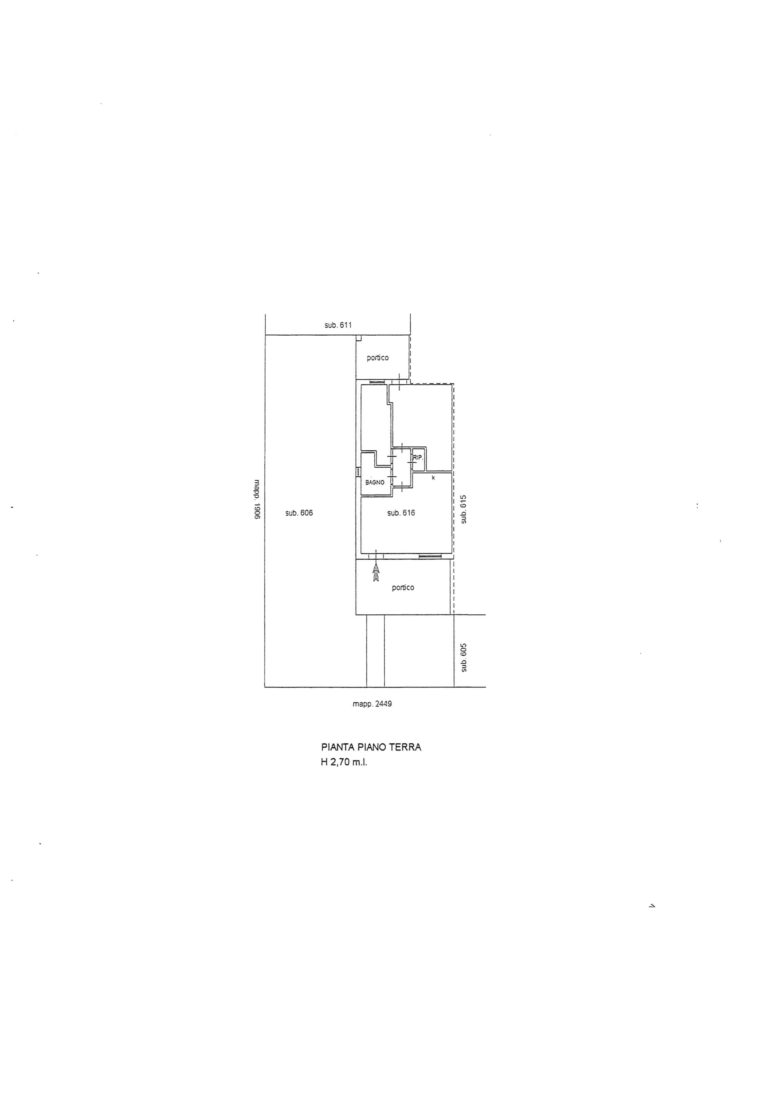
L' appartamento è una tipologia trilocale posta al piano terra angolare, oltre al grande giardino , troviamo  un ampio loggiato coperto pranzabile ,  entrando è  composta da un bel soggiorno con angolo cottura, disimpegno, comodo ripostiglio, studio adibito a cameretta e camera matrimoniale da cui si accede a un loggiato tergale, adibito a locale tecnico e lavanderia, bagno finestrato con doccia.

L'immobile è stato costruito alla fine degli anni '90, è ben mantenuto, dispone di porta blindata e finestre in legno con doppi vetri.


Posto auto scoperto di proprieta'.

Riscaldameno autonomo con caldaia a metano

NO CONDOMINIO 

Caratteristiche della Casa

Camere da letto
2
Porticato
Porticato Pranzabile
Metri Quadri
65 c.a.
Numero Vani
3
Piano
Terra
Numero Bagni
1
Posti Auto
1
Distanza dal mare
800 m c.a.
Giardino mq. c.a.
65

Servizi

Barbecue
Giardino
Posto auto
Riscaldamento

Planimetria

Ricerca per RIF.

Trova la tua casa

Sei interessato a questo immobile?

IMMOBILIARE CASA&MARE
Via S. Pellico, 1
57022 Marina di Castagneto
Carducci (LI), Toscana - Italy

Via Circonvallazione, 29
Cecina (LI), Toscana - Italy

Tel. 0565.745061
Whatsapp: 0565 745061

E-mail: casaemare@casaemare.com

Per avere informazioni via e-mail può utilizzare il modulo sottostante. Sarà nostro piacere risponderle al più presto. Grazie.