Характеристики Услуги Планиметрия Наши контакты

Описание объекта

2
nopor
SI
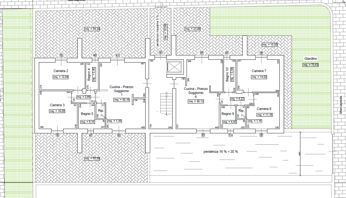
Площадь в кв. Метрах
88 c.a.
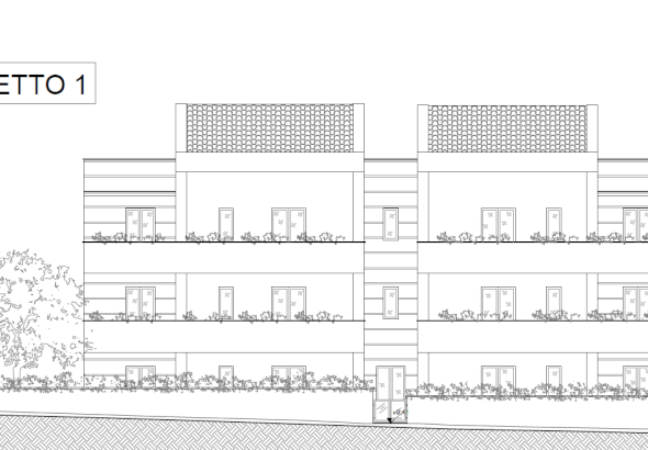
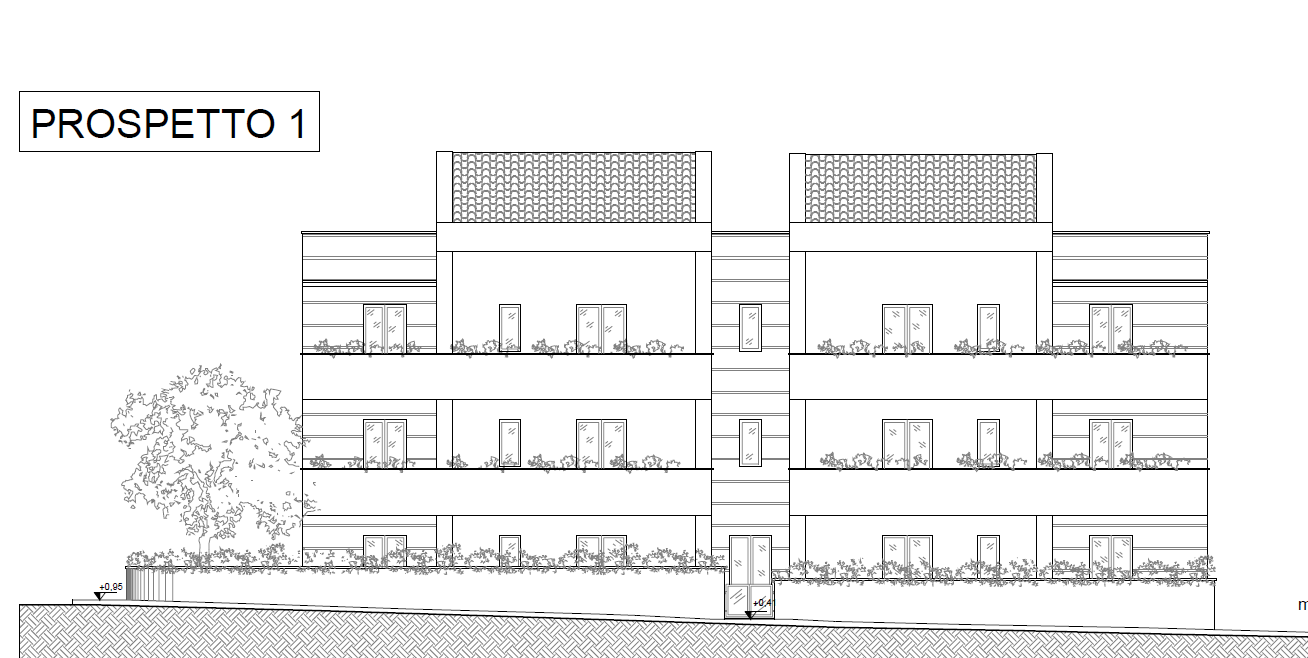
план дома
T-2
Количество туалетов
2
Места для парковки
1
Garage
SI
класс энергосбережения
A++++
7,70
Терраса
SI
Garden
SI
Basement
SI

Услуги

cellar
кондиционирование воздуха
гараж
garden
parking space
Riscaldamento

Планиметрия

Поиск по коду

Trova la tua casa

Sei interessato a questo immobile?

IMMOBILIARE CASA&MARE
Via S. Pellico, 1
57022 Marina di Castagneto
Carducci (LI), Toscana - Italy

Via Circonvallazione, 29
Cecina (LI), Toscana - Italy

Tel. 0565.745061
Whatsapp: 0565 745061

E-mail: casaemare@casaemare.com

До скорой встречи. Спасибо